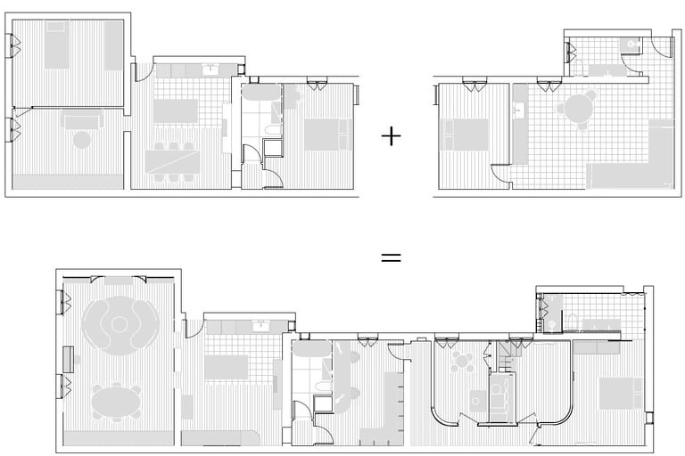
Caulaincourt
Surface : 120 m²
Localisation : Paris 18 ème
Jumelage de deux appartements haussmanniens


































L’enjeu de ce projet est la réunion de deux appartements de 50m² et de 70m² pour créer un lieu de vie unique, fluide et parfaitement adapté aux besoins d’une famille.
Le défi principal a été de repenser entièrement les espaces afin d’effacer toute trace de cette fusion, pour donner naissance à un appartement évident, comme s’il avait toujours existé ainsi.